't Strand 14
8373 EP, Blankenham
€ 199.500,- k.k.
Interesse in deze woning?
Plan een bezichtigingOmschrijving
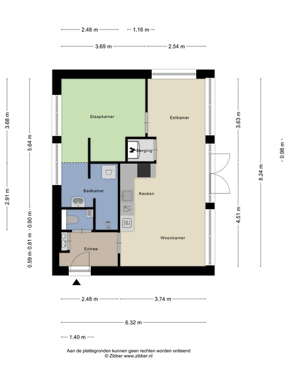
Een leuk appartement met eigen tuin rustig gelegen in de voormalige basisschool van Blankenham. Het appartement beschikt over een woonkamer, keuken, slaapkamer en een badkamer. De groene tuin is voorzien van een terras, een overdekt terras en 2 bergingen. Het appartement heeft een woonoppervlakte van ca.52m².
Specificaties
Gegevens
Vraagprijs
€ 199.500,- k.k.
Status
Verkocht
Aanvaarding
In overleg
Datum opdracht
17 Juni 2025
Bouw
Object soort
Appartement
Jaar
1960
Dak materiaal
Bitumen
Dak type
Zadeldak
Isolatievormen
Dak isolatie, Muur isolatie, Vloer isolatie, Dubbelglas
Oppervlaktes en inhoud
Woon oppervlakte
52 m2
Inhoud
172 m3
Oppervlakte externe bergruimte
12 m2
Indeling
Aantal verdiepingen
1
Aantal kamers
2
Aantal slaapkamers
1
Ligging
Tuin
Tuin 1 Type
Achtertuin
Schuur berging
Ja
Energie label
Energie klasse
C
CV ketel
Type boiler
Remeha
Ketel brandstof
Gas
Bouwjaar CV ketel
2019
Combi ketel
Ja
Ketel eigendom
Koop
Uitrusting
Soort warm water
CV ketel
Verwarming
CV ketel







































