Klaas Muisstraat 37
8375 BW, Oldemarkt
€ 559.500,- k.k.
Interesse in deze woning?
Plan een bezichtigingOmschrijving
Welkom in Oldemarkt, een dorp waar rust, natuur en centrale ligging samenkomen. Aan de rand van dit gezellige dorp staat deze ruime vrijstaande woning op een perceel van maar liefst 720m². Met een woonoppervlakte van ca.177 m², 5 slaapkamers, een serre en een inpandige garage biedt dit huis alle ruimte die u zich kunt wensen. Thuiswerken, lange avonden lezen in de serre, een speelkamer inrichten voor de kinderen: het kan allemaal in dit huis dat tal van mogelijkheden biedt.
Indeling
Bij binnenkomst komt u in de ruime hal met meterkast, toilet, trapopgang en een slaapkamer op de begane grond, die momenteel als kantoor wordt gebruikt. De lichte woonkamer met serre nodigt uit tot ontspannen avonden en heeft via een schuifpui direct toegang tot de tuin. De keuken is praktisch en compleet ingericht met diverse inbouwapparatuur, waaronder een inductiekookplaat, oven, magnetron, vaatwasser en close-in boiler. Vanuit de keuken bereikt u de kelder en de bijkeuken. Hier vindt u de koelkast, een extra wasbak, ruimte voor de was-droogopstelling en toegang tot zowel de tuin als de inpandige garage.
Eerste verdieping
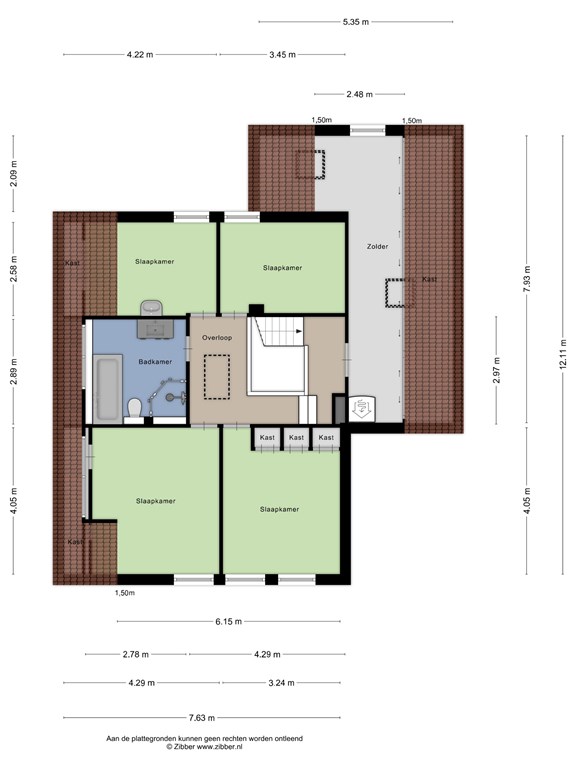
Op de eerste verdieping bevinden zich een ruime overloop, vide, 4 slaapkamers, een zolderberging en de badkamer met ligbad, aparte douche, wastafel en toilet.
Tweede verdieping
De woning beschikt daarnaast over een vliering: ideaal voor extra bergruimte.
Tuin
Rondom de woning ligt een royale tuin met veel groen, diverse terrassen en volop privacy. Hier geniet u het hele jaar door van de seizoenen. Voor de garage ligt een lange oprit met ruime parkeergelegenheid.
Details
Bijzonderheden/resumé:
- Ruime, lichte woonkamer met serre en complete keuken;
- 5 slaapkamers, waarvan één op de begane grond;
- Inpandige garage en kelder;
- 22 zonnepanelen aanwezig;
- Privacy rijke tuin met meerdere terrassen en oprit;
- Ruime parkeermogelijkheid op eigen terrein;
- Gelegen aan de rand van het dorp, op loopafstand van voorzieningen.
Zo combineert deze woning het beste van twee werelden: comfortabel wonen in een ruime vrijstaande woning, midden in het groen en met alle voorzieningen op korte afstand.
Bent u benieuwd of dit uw nieuwe (t)huis kan worden? Maak een afspraak voor een bezichtiging en ervaar zelf de charme van deze plek.
Oldemarkt
Oldemarkt telt zo’n 2.600 inwoners en maakt deel uit van de gemeente Steenwijkerland. Het dorp heeft een landelijke uitstraling, maar biedt alle dagelijkse voorzieningen binnen handbereik. Van winkels tot horeca en een actief verenigingsleven: u vindt het hier.
De ligging is bovendien ideaal: in ongeveer 10 minuten bereikt u de A32 richting Leeuwarden, Zwolle of Meppel. De plaatsen Steenwijk, Wolvega en Emmeloord liggen op slechts een kwartier rijden. En voor de natuurliefhebber is er volop keuze: wandelen in de bossen of ontdek het uitgestrekte Nationaal Park Weerribben-Wieden dat letterlijk om de hoek ligt.
















































