Marktplein 13
8375 AZ, Oldemarkt
€ 289.500,- k.k.
Interesse in deze woning?
Plan een bezichtigingOmschrijving
Een verrassende tussenwoning met beschutte tuin gelegen nabij het centrum. De woning beschikt over een woonkamer, woonkeuken, 3 slaapkamers, badkamer en een vliering. De beschutte achtertuin is voorzien van een overdekt terras, een achterom en een grote houten berging. De woning staat op een perceel van 156m² en heeft een woonoppervlakte van ca.87m².
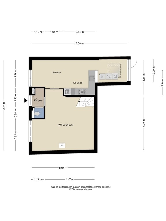
Indeling
Entree/hal met meterkast en toilet. De woonkamer beschikt over uitzicht op de straat, de trapopgang en de toegang naar de ruime woonkeuken. De keuken is voorzien van diverse inbouwapparatuur, o.a. een gaskookplaat en een koelkast. Via de woonkeuken bereikt u ook de achtertuin.
Eerste verdieping
Overloop met 3 slaapkamers en een badkamer voorzien van een wastafel in meubel en een ligbad met douche.
Tweede verdieping
Vliering.
Tuin
De beschutte achtertuin is gelegen op het oosten en voorzien van een overdekt terras, groen, een grote houten berging en een achterom.
Details
Bijzonderheden / resumé:
- een goed onderhouden en verrassend ingedeelde tussenwoning met grote berging;
- de woning is voorzien van een woonkamer en een woonkeuken;
- de woning is voorzien van 3 slaapkamers;
- de woning is voorzien van 5 zonnepanelen;
- de woning is grotendeels voorzien van isolerende beglazing;
- de woning is voorzien van een achtertuin met achterom, overdekt terras en houten berging;
- de woning is gelegen op loopafstand van diverse voorzieningen.
Oldemarkt
Oldemarkt is centraal gelegen op ca.10 minuten verwijderd van de A32 richting Leeuwarden/Zwolle/Meppel en slechts ca. 15 minuten van Steenwijk, Wolvega, Emmeloord en de A6 richting de Randstad.
Oldemarkt telt ca.2.600 inwoners en maakt deel uit van de gemeente Steenwijkerland. Het dorp heeft een landelijk karakter met een bebouwing die hoofdzakelijk bestaat uit woningen in twee bouwlagen en een dwarskap. De horizon wordt daarom voornamelijk bepaald door de twee kerken. De directe omgeving van het dorp bestaat uit een open agrarisch gebied met weilanden en sloten.
Ondanks het eerdergenoemde landelijke karakter van Oldemarkt zijn alle voorzieningen binnen handbereik. Oldemarkt fungeert binnen de gemeente Steenwijkerland als centrumdorp. Bovendien kent het dorp een bloeiend verenigingsleven.
Voor de natuurliefhebber ligt er in de directe omgeving diverse bossen en het grote natuurgebied "Weerribben - Wieden", waar water, bies en moerasbos de sfeer bepalen. Dit gebied is één van de mooiste plekjes van Nederland.





































