Hagenbroekweg 17
8376 EG, Ossenzijl
€ 449.500,- k.k.
Interesse in deze woning?
Plan een bezichtigingOmschrijving
Op een rustige locatie aan de rand van het nationaal park “de Weerribben-Wieden” en aan vaarwater gelegen vrijstaande recreatiewoning. De recreatiewoning beschikt over een woonkamer, keuken, bijkeuken, 3 slaapkamers en 2 badkamers. De tuin grenst aan gedeeltelijk aan het water en is voorzien van diverse terrassen, een houten berging, aanlegmogelijkheid voor een boot en parkeergelegenheid. De recreatiewoning staat op een perceel van 1.094m² en heeft een woonoppervlakte van ca.89m².
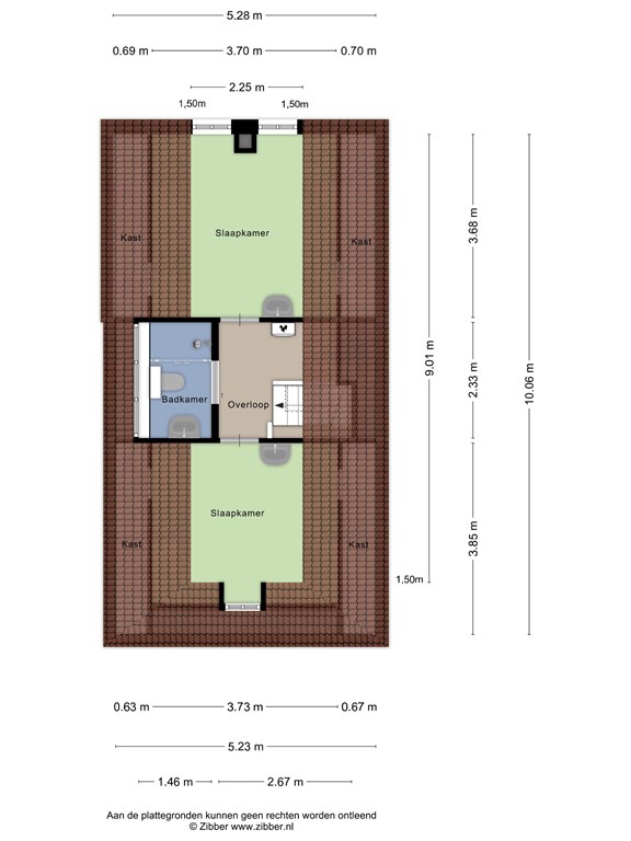
Indeling
Entree/hal met trapopgang en de badkamer voorzien van een wastafel, toilet en een douchehoek. De woonkamer beschikt over veel lichtinval, een openhaard, openslaande tuindeuren en de keukenopstelling met diverse inbouwapparatuur, o.a. koelkast, vaatwasmachine, quooker, afzuigschouw, gaskookplaat en een oven. Via de keuken bereikt u een slaapkamer voorzien van een wastafel, en de bijkeuken voorzien van een tuindeur.
Eerste verdieping
Overloop met 2 slaapkamers en de tweede badkamer voorzien van een wastafel, toilet en douchehoek.
Tuin
De tuin rondom de recreatiewoning grenst aan vaarwater en beschikt over diverse terrassen, veel groen, een houten berging, een aanlegsteiger en parkeergelegenheid.
Details
Bijzonderheden / resumé:
- de recreatiewoning is gelegen aan de rand van het nationaal park “de Weerribben-Wieden”;
- de recreatiewoning is voorzien van een tuin grenzend aan vaarwater met eigen aanlegsteiger;
- de recreatiewoning is voorzien een lichte woonkamer met moderne keuken;
- de recreatiewoning is voorzien van een slaapkamer en badkamer op de begane grond;
- de recreatiewoning is totaal voorzien van 3 slaapkamers en 2 badkamers;
- de recreatiewoning is voorzien van een houten berging en parkeergelegenheid;
- de recreatiewoning is gelegen in een kleinschalig park aan vaarwater en op korte afstand van diverse voorzieningen.
Ossenzijl
Het dorpje Ossenzijl valt onder de gemeente Steenwijkerland en is gelegen in de Kop van Overijssel aan de noordkant van het natuurgebied De Weerribben-Wieden. De naam van het dorp is ontleend aan de familie Osse die een sluis (=zijl) beheerde. De sluis wordt niet meer gebruikt, maar nog steeds is de Kalenbergergracht een belangrijke doorgaande scheepvaartroute, maar dan nu voor de pleziervaart van en naar de Overijsselse en Friese meren.
Vanuit Ossenzijl kunt u heerlijk fietsen, wandelen en varen door de natuurgebieden, één van de mooiste plekjes van Nederland.
Ossenzijl is zowel via het water als de weg (A32/A6) goed bereikbaar. Het ligt ongeveer 60 autominuten van de randstad, 10 autominuten van Steenwijk en Wolvega en enkele autominuten van Oldemarkt. Oldemarkt heeft een centrumfunctie voor de omgeving met diverse voorzieningen, o.a. winkels.


























































