Binnenweg 12 - 68
8378 JJ, Paasloo
€ 259.500,- k.k.
Interesse in deze woning?
Plan een bezichtigingOmschrijving
Op het mooie villapark “De Weerribben” staat deze rustig gelegen vrijstaande recreatievilla. De recreatievilla beschikt o.a. over een woonkamer, keuken, bijkeuken/berging, 4 slaapkamers en een badkamer. De tuin rondom de recreatievilla is voorzien van groen, diverse terrassen en parkeergelegenheid voor uw auto. De recreatievilla is gelegen op een perceel van 675m² en heeft een woonoppervlakte van ca.87m².
Indeling
Entree/hal met trapopgang, een slaapkamer en de badkamer voorzien van een toilet, wastafel en een douchehoek. De ruime lichte woonkamer beschikt over openslaande tuindeuren en een L-vormig keukenblok met diverse inbouwapparatuur, o.a. een gaskookplaat, afzuigkap, combimagnetron, vaatwasmachine en een koelkast. Via de hal bereikt u ook de berging/bijkeuken voorzien van een deur naar de tuin. Aan de buitenzijde bevindt zich de meterkast.
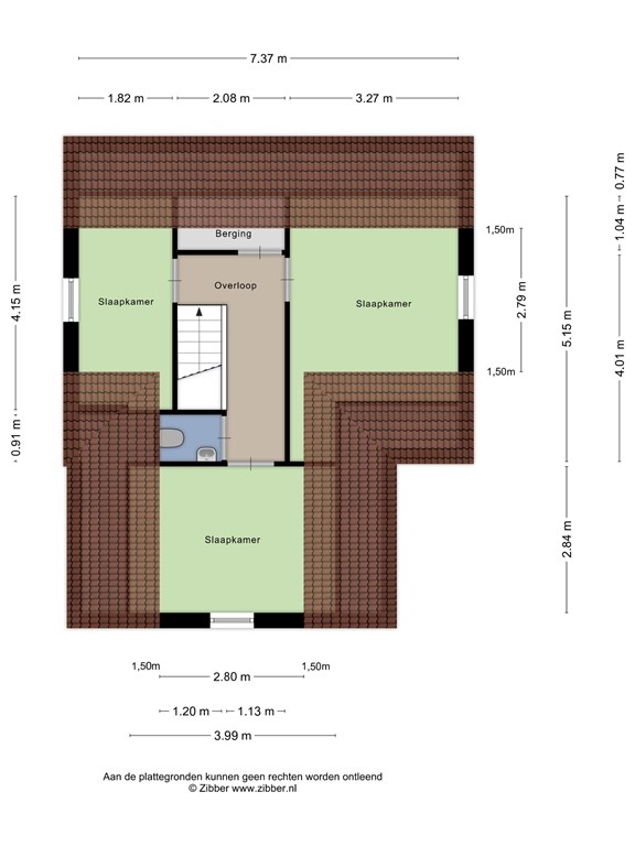
Eerste verdieping
Overloop met 3 ruime slaapkamers, een toilet en bergruimte.










































