Steenwijkerdiep 64 - A
8331 LT, Steenwijk
€ 389.500,- k.k.
Interesse in deze woning?
Plan een bezichtigingOmschrijving
Aan vaarwater en op loopafstand van het centrum gelegen tussenwoning met 5 slaapkamers. De woning beschikt verder over een woonkamer, keuken en een badkamer. De achtertuin, gelegen op het noorden, is voorzien van een overdekt terras, een berging en een achterom. De woning staat op een perceel van 114m² en heeft een woonoppervlakte van ca.126m².
Indeling
Overdekte entree / hal met meterkast, toilet, trapkast en de trapopgang. De woonkamer met veel lichtinval heeft een schuifpui naar de achtertuin, aan de voorzijde is de keuken met uitzicht op het water en voorzien van diverse inbouwapparatuur, o.a. een inductiekookplaat, afzuigkap, magnetron, oven en een vaatwasmachine.
Eerste verdieping
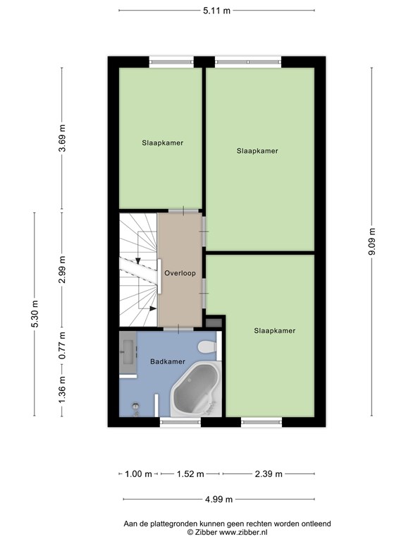
Overloop met trapopgang, 3 slaapkamer en de badkamer voorzien van een douchehoek, toilet, ligbad en een wastafel in meubel.
Tweede verdieping
Overloop met 2 slaapkamers. Via de voorste slaapkamer bereikt u met een vlizotrap een kleine vliering.
Tuin
De achtertuin, gelegen op het noorden, beschikt over een terras, een berging met overdekt terras en een achterom.
Details
Bijzonderheden / resumé:
- de woning is mooi gelegen aan vaarwater en op loopafstand van het centrum ;
- de woning beschikt over lichte woonkamer met moderne keuken;
- de woning beschikt over 5 slaapkamers en een kleine vliering;
- de woning beschikt over een achtertuin met een overdekt terras en een achterom;
- de woning beschikt over 10 zonnepanelen;
- de woning is gelegen op korte afstand van het openbaar vervoer en de snelweg.
Steenwijk
Steenwijk is gelegen aan de A32 tussen Meppel en Heerenveen, ook de A6 (Emmeloord) is goed bereikbaar.
Steenwijk is méér dan een gebied van water, wei, bos en hei. De binnenstad van Steenwijk heeft een uitgesproken historisch karakter en wordt omgeven door stadswallen en grachten. De Olde Veste, zoals Steenwijk ook wel wordt genoemd, roept herinneringen op aan een ver verleden, waarin het zich ontwikkelde tot een markt- en handelscentrum van formaat.
Steenwijk kan bogen op een rijke historie. Opvallend in het stadsbeeld is de 86 meter hoge, uit 1467 daterende toren van de Sint Clemenskerk. Deze laatgotische hallenkerk is grondig gerestaureerd, Steenwijk beschikt over een speciale monumentenroute van de ANWB.
Steenwijk is centraal gelegen tussen het natuur- en watergebied van Noordwest-Overijssel, de bos- en natuurgebieden van Zuidwest-Drenthe en Zuidoost-Friesland. Een drietal nationale parken bevindt zich op fietsafstand. Binnen deze fraaie omgeving ligt 'als een spin in het web' de historische vestingstad Steenwijk. De gemeente ligt in een gebied, waar de gemoedelijkheid van de bewoners in deze jachtige tijd een opvallend verschijnsel is. Noordwest-Overijssel. Zowel voor de rustzoeker als voor degenen die sfeer en vertier zoeken, biedt Noordwest-Overijssel veel mogelijkheden.













































