Butenweg 10
8351 GD, Wapserveen
€ 399.500,- k.k.
Interesse in deze woning?
Plan een bezichtigingOmschrijving
Aan de rand van het dorp gelegen vrijstaande woning met slaap- en badkamer op de begane grond. De woning beschikt over een woonkamer, keuken, studeerkamer, 3 slaapkamers en 2 badkamers. De tuin is voorzien van veel groen, privacy, diverse terrassen en een garage. De woning staat op een perceel van 421m² en heeft een woonoppervlakte van ca.102m².
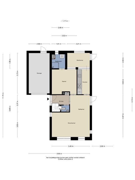
Indeling
Entree/hal met meterkast, toilet en trapopgang. De woonkamer beschikt over een openslaande tuindeur en een toegang naar de keuken voorzien van een keukenblok met inbouwapparatuur o.a. gaskookplaat, combimagnetron, afzuigkap, vaatwasmachine en een koelkast. Via de keuken bereikt u de studeerkamer. De slaapkamer, bereikbaar via de woonkamer, is voorzien van een badkamer met een douchehoek, wastafel en een aansluiting voor een wasmachine.
Eerste verdieping
Overloop met berging, 2 ruime slaapkamers en de badkamer voorzien van een douchehoek en een wastafel.
Tweede verdieping
Vliering, bereikbaar middels een vlizotrap.
Tuin
Een tuin voorzien van veel groen, privacy en diverse terrassen. Naast de woning is een garage met een oprit.
Details
Bijzonderheden / resumé:
- De woning is gelegen aan de rand van het dorp met uitzicht over de landerijen;
- De woning beschikt over een slaap- en badkamer op de begane grond;
- De woning beschikt totaal over 3 slaapkamers en 2 badkamers;
- De woning beschikt over een groene tuin met diverse terrassen;
- De woning beschikt over een aangebouwde stenen garage met oprit;
- De woning is gelegen in een leuke buurt op fietsafstand van diverse voorzieningen;
- De woning is gelegen in een omgeving met mooie fiets- en wandelroutes.
Wapserveen
Het dorp Wapserveen valt onder de gemeente Westerveld. De gemeente Westerveld is een typische plattelandsgemeente in Zuidwest-Drenthe. De gemeente is dun bevolkt. Op een oppervlakte van 28.300 hectare wonen ruim 19.000 inwoners.
Westerveld is in het trotse 'bezit' van twee schitterende Nationale Parken, te weten het Dwingelderveld en het Drents Friese Wold. De uitgestrekte bossen, zandverstuivingen en heidevelden met hun vennen en rijke flora en fauna zijn uniek in Europa.
In de gemeente ontdekt u de ongerepte karakteristieke dorpsbeelden met hun intieme brinken. De vele monumentale panden waaronder schitterende Saksische boerderijen en kerken stralen de warmte en sfeer uit van het Drentse land. Cultuurhistorische waarden worden zorgvuldig gekoesterd en geconserveerd.




















































