Standerstraat 4
8471 GK, Wolvega
€ 285.000,- k.k.
Interesse in deze woning?
Plan een bezichtigingOmschrijving
Een nette tussenwoning gelegen nabij diverse voorzieningen. De woning beschikt over een woonkamer, keuken, bijkeuken, 3 slaapkamers, badkamer en een zolder. De achtertuin, gelegen op het noordwesten, is onderhoudsvriendelijk en voorzien van een overdekt terras, een achterom en een berging. De woning staat op een perceel van 145m² en heeft een woonoppervlakte van ca.96m².
Indeling
Entree/hal met meterkast, trapopgang en toilet. De woonkamer beschikt over veel lichtinval en een modern keukenblok met een gaskookplaat en een afzuigkap. De bijkeuken, bereikbaar via de keuken beschikt over een tuindeur.
Eerste verdieping
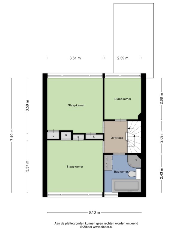
Overloop met trapopgang, 3 slaapkamers en de badkamer voorzien van een douchehoek, ligbad, toilet en een dubbele wastafel in een meubel.
Tweede verdieping
Ruime zolder met mogelijkheid voor een extra slaapkamer.
Tuin
De onderhoudsvriendelijke achtertuin, gelegen op het noordwesten, is voorzien van een berging, een overdekt terras en een achterom.
Details
Bijzonderheden / resumé:
- de woning beschikt over 10 zonnepanelen;
- de woning beschikt over een moderne keuken met gaskookplaat en afzuigkap;
- de woning beschikt over 3 slaapkamers en een zolder;
- de woning beschikt bijna geheel over kunststof kozijnen met isolerende beglazing;
- de woning beschikt over een onderhoudsvriendelijke achtertuin met berging en overkapping;
- de woning ligt nabij diverse voorzieningen.
Wolvega
Wolvega is een plaats dat valt onder de gemeente Weststellingwerf. Dit is de meest zuidelijk gelegen gemeente in Friesland, grenzend aan Drenthe en Overijssel. De streek heeft een eigen, specifieke schoonheid met volop rust, ruimte en natuur. In het oosten bevinden zich fraaie bossen en licht glooiende akkers. Het westen bevat uitgestrekte, waterrijke natuurgebieden. Als leidraad door dit landschap kronkelt de mooie rivier de Linde. De Tjonger vormt op veel plaatsen de grens van de gemeente.
Op loop- en fietsafstand zijn alle voorzieningen aanwezig zoals scholen, winkels en openbaar vervoer. Wolvega kent een actief verenigingsleven met o.a. voetbal en een actief dorpsbelang.
Wolvega is goed bereikbaar via de A32 en de A6.





































