Oudeweg 10
8376 HP, Ossenzijl
€ 499.500,- k.k.
Interesse in deze woning?
Plan een bezichtigingOmschrijving
Heerlijk vrij wonen aan open vaarwater op een unieke locatie in natuurgebied “de Weerribben-Wieden”. Genieten met familie en vrienden van de goede dingen van het leven, in een omgeving waar de schitterende natuur ieder jaargetijde weer verrast. Vanaf uw eigen aanlegsteiger vaart u direct het natuurgebied “de Weerribben-Wieden” in, maar ook de Overijsselse meren, de Friese meren en het IJsselmeer zijn via de Staande Mastroute eenvoudig bereikbaar. Na een vorstperiode, verandert de omgeving in een oud Hollands tafereel met ongekende schaatsmogelijkheden. U kunt op uw eigen steiger de schaatsen onderbinden en prachtige tochten maken. Deze vrijstaande woonboerderij, alleen bereikbaar via het water, biedt u deze mogelijkheden.
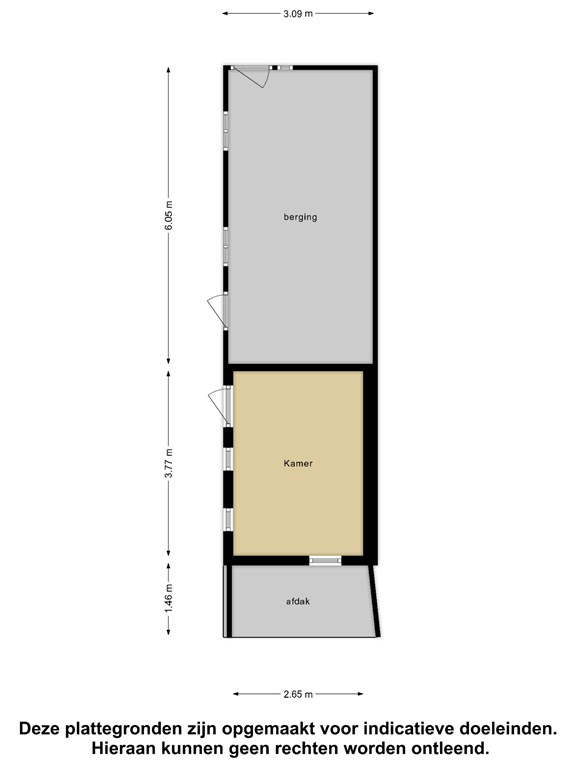
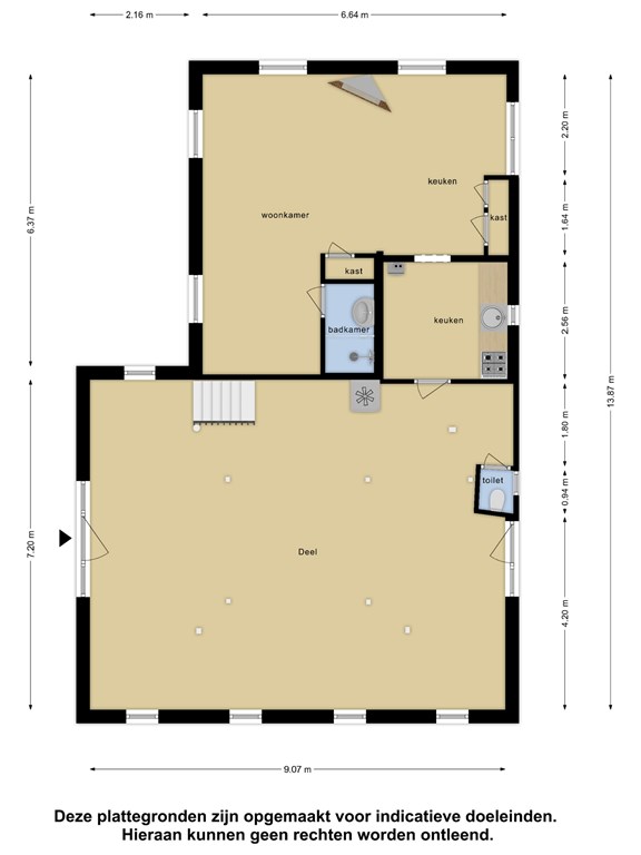
De woonboerderij beschikt over een woonkamer, keuken, ruime deel, 3 slaapkamers en een badkamer. Het ruime perceel rondom de woonboerderij is voorzien van een zonneterras, eigen steiger aan eigen sloot en een schuur met een slaapkamer. De woonboerderij is gelegen op een perceel van 2.660 m² en heeft een woonoppervlakte van ca.110m² en een verdieping van ca.32m² (overig inpandige ruimte).
Indeling
Entree / ruime deel met trapopgang en toilet. De woonkamer heeft veel lichtinval en een schitterend vrij uitzicht over het vaarwater. De keuken is gelegen tussen de woonkamer en de deel en beschikt over een keukenblok met een gaskookplaat en een vaatwasmachine. De badkamer, bereikbaar via de woonkamer, is voorzien van een douchehoek en een wastafel.
Eerste verdieping
Overloop met 3 slaapkamers voorzien van een eigen wastafel.
Tuin
Het ruime perceel, gelegen rondom de woonboerderij, beschikt over een zonneterras, steiger, een prachtig vrij uitzicht over het water en het natuurgebied en een schuur met een slaapkamer. Langs de gehele waterkant kunt u boten aanleggen. Achter het perceel is een klein meer, dat deel uitmaakt van het omliggende natuurgebied.
Details
Bijzonderheden / resumé:
- De woonboerderij is gelegen op een unieke locatie met aan 2 zijden water en aan 2 zijden natuurgrond van Staatsbosbeheer;
- De woonboerderij is gelegen in het natuurgebied “de Weerribben-Wieden”;
- De woonboerderij is gelegen op een perceel van 2.660 m² met een ruim terras en steiger;
- De woonboerderij beschikt over een woonoppervlakte van ca.110 m² en een overige inpandige ruimte (eerste verdieping) van ca.32m²;
- De woonboerderij is ALLEEN BEREIKBAAR VIA HET WATER en biedt daardoor veel privacy,
- Op ca. 5 minuten lopen is parkeergelegenheid voor uw auto aanwezig;
- Het is een aantrekkelijke locatie voor watersporters, natuurliefhebbers en rustzoekers.
Ossenzijl
Het dorp Ossenzijl valt onder de gemeente Steenwijkerland en is gelegen in de Kop van
Overijssel tussen de natuurgebieden de “Weerribben-Wieden” en de “Rottige Meente”. De
naam van het dorp is ontleend aan de familie Osse die een sluis (=zijl) beheerde. De sluis
wordt niet meer gebruikt, maar nog steeds is de Kalenbergergracht een belangrijke
doorgaande scheepvaartroute, maar dan nu voor de pleziervaart van en naar de Overijsselse en
Friese meren.
Vanuit Ossenzijl kunt u heerlijk fietsen, wandelen en varen door de natuurgebieden, één van
de mooiste plekjes van Nederland.
Ossenzijl is via de weg (A32/A6) goed bereikbaar. Het ligt ongeveer 60 autominuten van de
Randstad, 15 autominuten van Steenwijk, Wolvega en Emmeloord en enkele autominuten van
Oldemarkt. Oldemarkt heeft een centrumfunctie voor de omgeving. Hier vindt u diverse
winkels en tevens tal van voorzieningen op het gebied van cultuur en sport.

















































